Szada Latkep

Megismételt pályázati felhívás a Piac üzlethelyiségeinek és árusítóhelyeinek bérbeadásáról - csökkentett bérleti díjakkal

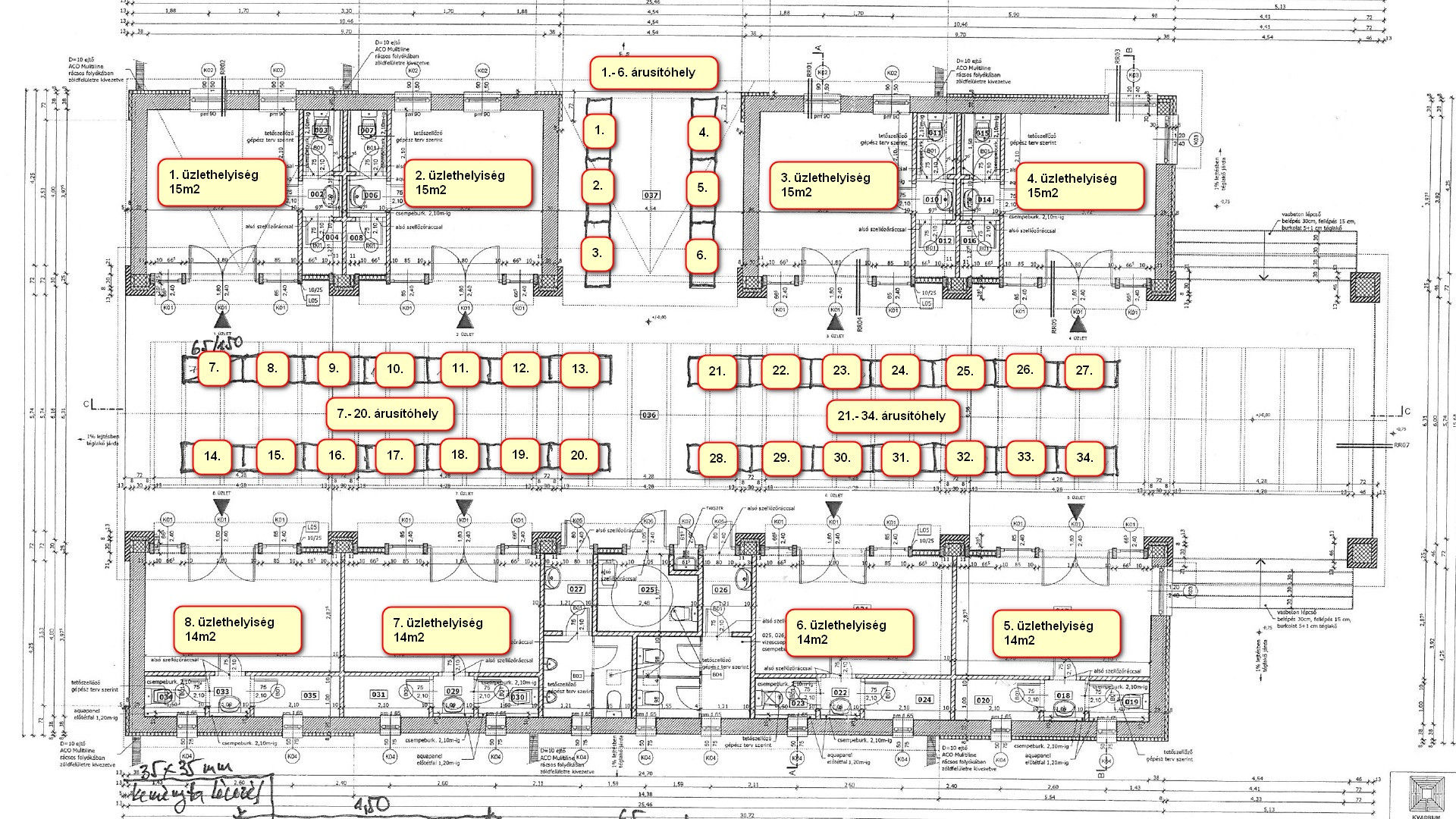
Szada Nagyközség Önkormányzat képviseletében és átruházott hatáskörében eljárva Szada Nagyközség Polgármestere a Szada belterület 2748/1 helyrajzi számú Piac (természetben 2011 Szada, Ősz utca 4.) ingatlanon található üzlethelyiségek és árusítóhelyek bérbeadására pályázatot hirdet.

Az üzlethelyiségek/ árusítóhelyek bérleti díjai:

Üzlethelyiség:
- a bérleti szerződés megkötésétől számított első tizenkét hónapban:
12 500 Ft/hónap
137 500 Ft/év
- a második évtől kezdődően:
500 Ft/m2/alkalom
50 000 Ft/hónap
550 000 Ft/év

Árusítóhely:
- a bérleti szerződés megkötésétől számított első tizenkét hónapban:
500 Ft/alkalom
6.000 Ft/év
- a második évtől kezdődően:
24 000 Ft/év

A pályázatokat 2 példányban, zárt borítékban 2021. február 1. 10.00 óráig lehet eljuttatni a Polgármesteri Hivatal Titkárságára
- postai úton (2111 Szada, Dózsa György út 88.). A borítékra rá kell írni: „Pályázat a Szada Piac üzlethelyiség/árusítóhely bérleti jogára”.
- vagy e-mailben (szada@szada.hu)

Piac Alaprajz

Piac alaprajz


Utoljára frissítve: 2021 február 01. 10:17

széchenyi terv plusz